林鍵:國賓一號——展現豐富層次的空間美學
瀏覽量:211
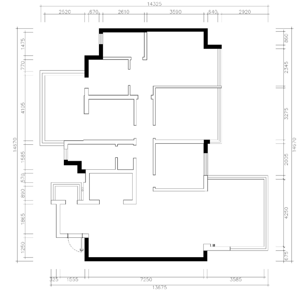
原始戶型圖
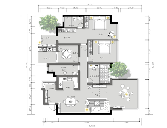
這套房子在空間上優勢明顯,從窗戶就可以鳥瞰整個城市江景的景色。
客廳、餐廳廚房是室內空間里非常重要的區域,同時也占據了室內的大部分空間。業主想要一個舒適大氣的客餐廳,希望設計師能在作品空間中展現的靈活性和延伸感,通過應用線條的變化,色彩變化及不同筆法表現畫面的虛實與美感。女主人對麻將情有獨鐘,想擁有自己的麻將室,還想擁有自己的私人空間和展示區。

平面布置圖
客廳、餐廳廚房是室內空間里非常重要的區域,同時也占據了室內的大部分空間。業主想要一個舒適大氣的客餐廳,希望設計師能在作品空間中展現的靈活性和延伸感,通過應用線條的變化,色彩變化及不同筆法表現畫面的虛實與美感。女主人對麻將情有獨鐘,想擁有自己的麻將室。
客廳效果圖VS客廳實景圖




客餐廳采取一體化的設計,通透寬敞視覺增加了整體空間的層次感,餐廳背景墻與客廳采用不同色調以及材質的家具予以區分與以協調,達成相輔相成之美。上方的蜿蜒燈盞猶如熱帶叢林的藤曼,座椅的顏色同色系著客廳的色彩,設計師得心應手以材料與色彩營造空間氛圍。
麻將室效果圖VS麻將室實景圖


女主人對麻將情有獨鐘,在狹小的環境,騰出一個房間做為麻將室,利用簡單的配色和設計師精心挑選的掛畫,讓整個空間顯得高級,優雅。
臥室效果圖VS臥室實景圖


主臥的套房設計,主臥,衣帽間,書房一體化可以給業主更強的居住獨立性以及舒適感。整體延續了客廳的風格,白色與綠色之間的碰撞,與客廳互相呼應,橙色的懶人椅作為整個空間的點綴色。照明以主燈加上床兩側的吊燈做陪襯,讓整個空間顯得很有層次更有情調。
相關案例推薦RELATED TO THE CASE
查看更多案例-
現代風格丨 四居室以上 丨120-150㎡
-
現代風格丨 三居室 丨80-120㎡
-
極簡風格丨 三居室 丨80-120㎡
-
其它風格丨 三居室 丨80-120㎡
預約整裝設計方案服務
*已有【1000+】人成功預約
設計資訊DESIGN INFORMATION
查看更多資訊-
-
15
2022-05
南寧自有工人的裝修公司
南寧自有工人的裝修公司,說到裝修,自... 查看詳情>> -
15
2022-05
如何選南寧裝修公司省錢又省心?
在南寧新房裝修如何選擇裝修公司省錢又... 查看詳情>> -
15
2022-05
南寧新房選裝修公司一定要看這8大保障!
南寧新房裝修怎么選裝修公司,這8大保... 查看詳情>> -
15
2022-05
南寧新房裝修怎么選裝修公司?
不操心的裝修,往往是大部分人對房子裝... 查看詳情>> -
15
2022-05
南寧裝修公司怎么選?
說到裝修,大部分業主最先聯想到的就是... 查看詳情>>



